0

4 pièces 72m2 + Parking en sus

Versailles (78000)
Réf : JOVERSAILLE

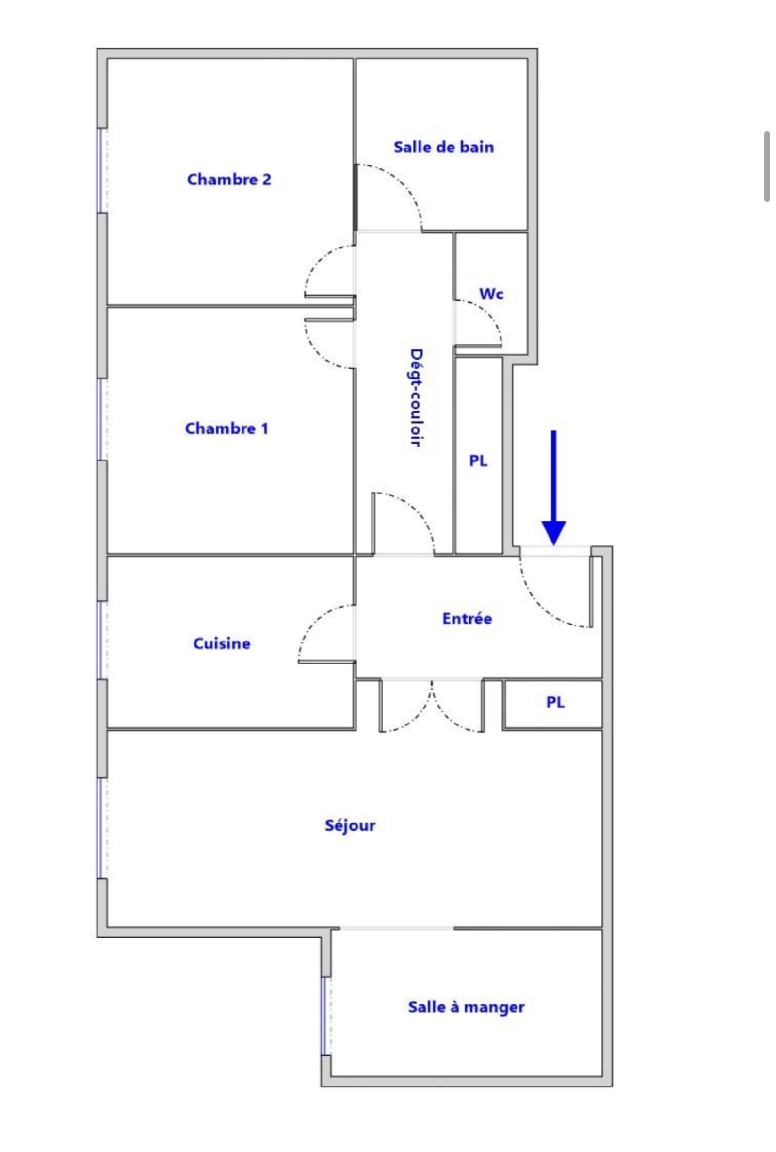
VERSAILLE, Rue Victor Bart dans une résidence des années 70 avec gardien, se trouve au 2e étage avec ASCENSEUR, un beau 4 pièces de 72m² Carrez avec une vue dégagée sans vis à vis !! Il se compose d'une petite entrée avec placard, d'un séjour salle à manger de 30m2, d'une cuisine séparée et équipée de 8m2 (possibilité de faire une cuisine américaine si besoin), de 2 chambres d'environ 10m2, d'une salle de bain et d'un WC séparés. Pas de perte de place, pas de mur porteur. Un parking est disponible en supplément. Possibilité de faire soit un grand séjour avec cuisine US et 2 chambres ou bien Séjour avec cuisine us et 3 chambres !! Modulable avec un gros potentiel !! Secteur recherché !! À visiter sans tarder !!

Prix du bien 445 000 €
Pièce(s) 4
Chambre(s) 2

Caractéristiques du bien

Caractéristiques Valeurs
Code postal 78000
Surface habitable (m²) 72 m²
Surface loi Carrez (m²) 72 m²
Nombre de chambre(s) 2
Nombre de pièces 4
Etage 2
Ascenseur OUI
Vue Vue dégagée
Nb de salle de bains 1
Cuisine Séparée
Type de cuisine Equipée
Mode de chauffage Gaz
Type de chauffage Radiateur
Format de chauffage Collectif
Interphone OUI
Balcon NON
Terrasse NON
Exposition Nord-Est
Année de construction 1978

Infos financières

Caractéristiques Valeurs
Prix de vente honoraires TTC inclus 445 000 €
Charges 300 €
Taxe foncière annuelle 1 570 €

Bilans énergétiques

DPE GES
Ce bien vous intéresse ?
Fieldset par défaut
Fieldset par défaut
Validation

* Champs obligatoires

Contacter l'agence
Validation
Les informations recueillies sur ce formulaire sont enregistrées dans un fichier informatisé par La Boite Immo agissant comme Sous-traitant du traitement pour la gestion de la clientèle/prospects de l'Agence / du Réseau qui reste Responsable du Traitement de vos Données personnelles. La base légale du traitement repose sur l'intérêt légitime de l'Agence / du Réseau. Elles sont conservées jusqu'à demande de suppression et sont destinées à l'Agence / au Réseau. Conformément à la loi « informatique et libertés », vous disposez des droits d’accès, de rectification, d’effacement, d’opposition, de limitation et de portabilité de vos données. Vous pouvez retirer votre consentement à tout moment en contactant directement l’Agence / Le Réseau. Consultez le site https://cnil.fr/fr pour plus d’informations sur vos droits. Si vous estimez, après avoir contacté l'Agence / le Réseau, que vos droits « Informatique et Libertés » ne sont pas respectés, vous pouvez adresser une réclamation à la CNIL. Nous vous informons de l’existence de la liste d'opposition au démarchage téléphonique « Bloctel », sur laquelle vous pouvez vous inscrire ici : https://www.bloctel.gouv.fr Dans le cadre de la protection des Données personnelles, nous vous invitons à ne pas inscrire de Données sensibles dans le champ de saisie libre.
Ce site est protégé par reCAPTCHA, les Politiques de Confidentialité et les Conditions d'Utilisation de Google s'appliquent.