0

4 Pièces 72m2+ Balcon + Cave + Local vélos

Vincennes (94300)
Réf : JOSEG

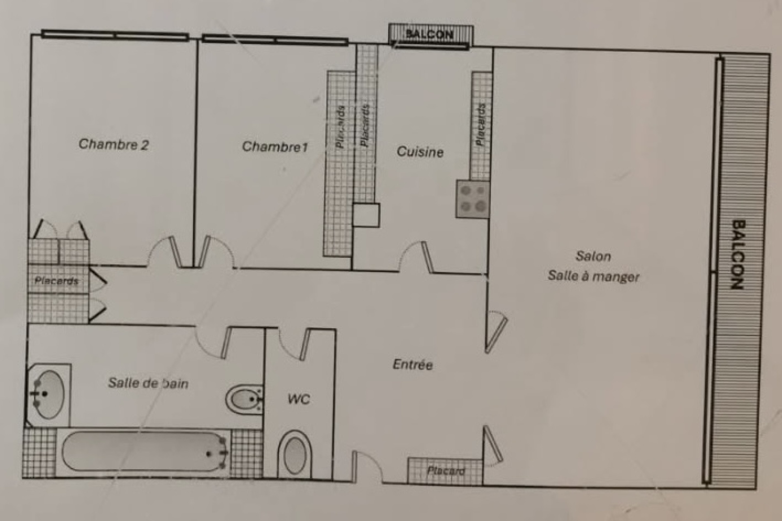
Vincennes, au pied de la ligne 1 "Berault", dans une résidence de standing avec gardien, se trouve en étage élevé avec ASCENSEUR, un beau 3/4 pièces de 72m² Carrez avec une vue dégagée !! Il se compose d'une petite entrée avec placard, d'un double séjour de 25m2 avec 2 baies vitrées exposition plein SUD donnant sur un Balcon Large, d'une cuisine séparée et équipée de 7m2 avec petit balcon, de 2 chambres d'environ 11m2 sur une petite rue au calme, d'une salle de bain et d'un WC séparés avec lave-mains. Pas de perte de place. Une cave d'environ 4m2 + un local vélos complètent ce bien ainsi qu'une place de parking en location. Possibilité de faire soit un grand séjour avec cuisine US et 2 chambres ou bien Séjour avec cuisine us et 3 chambres !! Appartement avec travaux !! Modulable avec un gros potentiel !! Secteur recherché !! À visiter sans tarder !!

Prix du bien 690 000 €
Pièce(s) 4
Chambre(s) 2

Caractéristiques du bien

Caractéristiques Valeurs
Code postal 94300
Surface habitable (m²) 72 m²
Surface loi Carrez (m²) 72 m²
Nombre de chambre(s) 2
Nombre de pièces 4
Etage 4
Ascenseur OUI
Vue Dégagée sur rue
Nb de salle de bains 1
Cuisine Séparée
Type de cuisine Equipée
Mode de chauffage Gaz
Type de chauffage Radiateur
Format de chauffage Collectif
Interphone OUI
Visiophone OUI
Balcon OUI
Terrasse NON
Cave OUI
Surface cave (m²) 4
Exposition Sud
Année de construction 1960

Infos financières

Caractéristiques Valeurs
Prix de vente honoraires TTC inclus 690 000 €
Charges 280 €
Taxe foncière annuelle 1 800 €

Bilans énergétiques

DPE GES
Ce bien vous intéresse ?
Fieldset par défaut
Fieldset par défaut
Validation

* Champs obligatoires

Contacter l'agence
Validation
Les informations recueillies sur ce formulaire sont enregistrées dans un fichier informatisé par La Boite Immo agissant comme Sous-traitant du traitement pour la gestion de la clientèle/prospects de l'Agence / du Réseau qui reste Responsable du Traitement de vos Données personnelles. La base légale du traitement repose sur l'intérêt légitime de l'Agence / du Réseau. Elles sont conservées jusqu'à demande de suppression et sont destinées à l'Agence / au Réseau. Conformément à la loi « informatique et libertés », vous disposez des droits d’accès, de rectification, d’effacement, d’opposition, de limitation et de portabilité de vos données. Vous pouvez retirer votre consentement à tout moment en contactant directement l’Agence / Le Réseau. Consultez le site https://cnil.fr/fr pour plus d’informations sur vos droits. Si vous estimez, après avoir contacté l'Agence / le Réseau, que vos droits « Informatique et Libertés » ne sont pas respectés, vous pouvez adresser une réclamation à la CNIL. Nous vous informons de l’existence de la liste d'opposition au démarchage téléphonique « Bloctel », sur laquelle vous pouvez vous inscrire ici : https://www.bloctel.gouv.fr Dans le cadre de la protection des Données personnelles, nous vous invitons à ne pas inscrire de Données sensibles dans le champ de saisie libre.
Ce site est protégé par reCAPTCHA, les Politiques de Confidentialité et les Conditions d'Utilisation de Google s'appliquent.